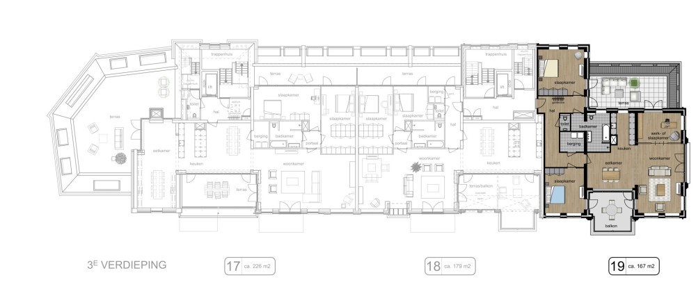
Penthouse 19
Kenmerken van Penthouse 19
Oppervlakte: ca. 167 m2
Een fenomenaal penthouse op de hoek van de Parel van de Delta met prachtig weids uitzicht. Deze parel van ca. 167m2 beschikt over twee ruime slaapkamers en een werkkamer die tevens als extra slaapkamer kan dienen. In de entreehal treft u een aparte bergruimte en separaat toilet aan. Het penthouse heeft een uniek uitzicht vanaf het royale balkon maar u kunt ook gebruik maken van het beschutte terras aan de achterzijde van het penthouse. U kunt hier iedere dag genieten van een uniek vrij uitzicht met de privacy die u wenst.